Dulwich Hamlet Stadium, London England

2025

Project Value: £ confidential

Client: Meadow Partners / Dulwich Hamlet Football Club

Contractor: TBC

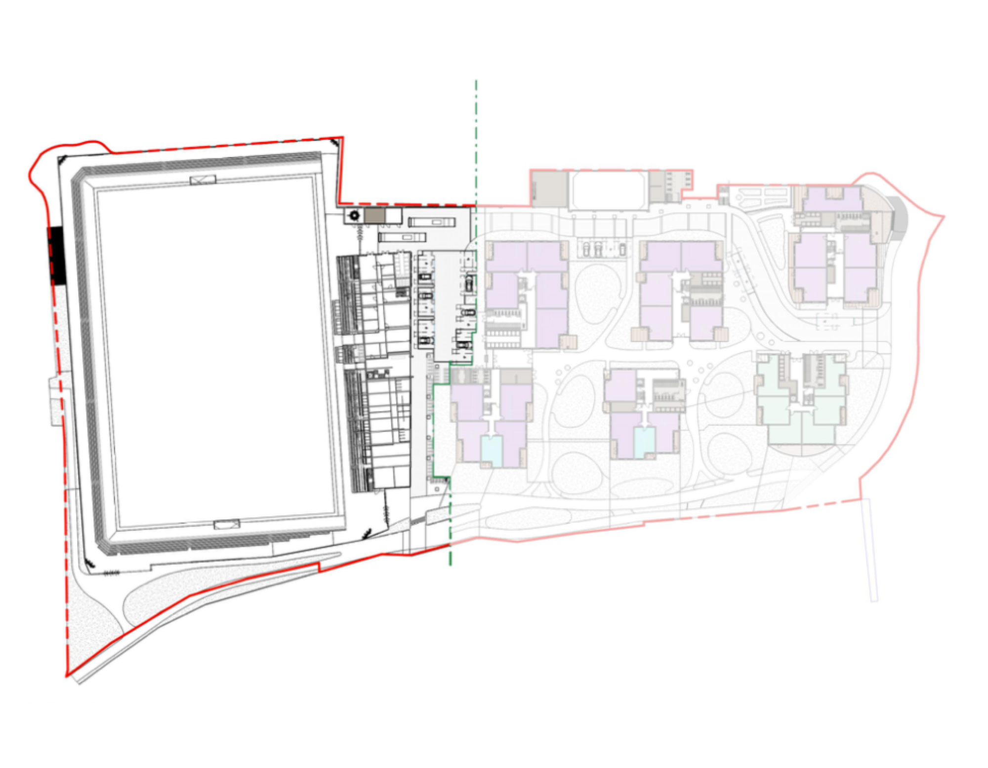
JBC Projects along with Costudio Consulting and Populous were appointed by Meadow Partners and Dulwich Hamlet Football Club (DHFC) to carry out a full feasibility study and review of the cost, constructibility and suitability of the approved planning drawings by Allan Camp Architects for the construction of a new football stadium on an adjacent site near the existing ground.

Previous
Previous

Utilita Arena, Sheffield England

Next
Next

Capital Theatre, London England